Dom na sprzedaż Siemianowice Śląskie

4 pokoje
136.00 m²
5 654,41 zł/m2
DMD-DS-2442
Oblicz ratę kredytu

769 000 zł

Dom na sprzedaż
Bez prowizji

Szczegóły oferty

Symbol oferty DMD-DS-2442
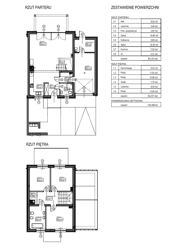
Powierzchnia 136,00 m²
Powierzchnia działki [m2] 260 m²
Liczba pokoi 4
Rodzaj domu bliźniak
Technologia budowlana beton, cegła
Standard
Okna nowe PCV
Pokrycie dachu blachodachówka
Stan budynku do wykończenia
Rok budowy 2026
Umeblowanie puste

Opis nieruchomości

DOMY Z OGRODEM | SIEMIANOWICE ŚLĄSKIE | OSIEDLE SPACEROWE

Cena od: 769 000 zł
Kupujący nie płaci prowizji ani podatku PCC 2%

Na sprzedaż nowoczesne domy zlokalizowane na Osiedlu Spacerowym w Siemianowicach Śląskich – w spokojnej i rozwijającej się części miasta, z szybkim dojazdem do Katowic oraz miast ościennych.


Dostępność:

Zabudowa bliźniacza – GOTOWY DOM:
Segment B6
Powierzchnia: 136 m²
Cena: 780 000 zł

Gotowy do zakupu – możliwość szybkiej finalizacji.


Zabudowa szeregowa – etap w budowie:

Segmenty: S17, S18, S19, S31
Powierzchnia: 136 m²
Cena: 769 000 zł

Planowane zakończenie budowy: IV kwartał 2026 r.


Parametry:

– powierzchnia: 136 m²
– funkcjonalny układ pomieszczeń
– ogród przy każdym segmencie
– miejsca postojowe przy budynku
– nowoczesna architektura


Lokalizacja:

– szybki dojazd do Katowic i miast aglomeracji
– spokojna okolica z zabudową jednorodzinną
– rozwijająca się infrastruktura
– dobra komunikacja i dostęp do tras wyjazdowych


Atuty inwestycji:

– dostępny dom gotowy do odbioru
– możliwość zakupu w trakcie budowy
– optymalny metraż dla rodziny
– alternatywa dla mieszkań w podobnym budżecie


Obsługa:

Zapewniamy kompleksowe wsparcie:
– analiza dokumentów
– pomoc w uzyskaniu kredytu
– bezpieczne przeprowadzenie transakcji


Zapraszam do kontaktu w celu uzyskania szczegółów i umówienia prezentacji.

Lokalizacja nieruchomości

Kalkulatory

Kalkulator kredytowy

Wysokość raty

PLN
%

Kalkulator kosztów

Taksa notarialna
(opłata notarialna)

Wniosek o wpis do KW

VAT od prowizji
agencji nieruchomości

VAT od taksy notarialnej
(opłaty notarialnej)

Prowizja agencji nieruchomości

Wypisy aktu notarialnego

Razem

Uwaga: mogą wystąpić dodatkowe opłaty za założenie księgi wieczystej oraz ustanowienie hipoteki.

PLN
PLN
PLN
PLN
PLN
%
PLN

Agent

Proszę wprowadzić poprawne imię i nazwisko
Proszę wprowadzić poprawny numer telefonu
Proszę wprowadzić poprawny adres e-mail
Proszę zaznaczyć wymagane zgody
Rozwiąż równanie:
16 5
Niepoprawny wynik