Dom na sprzedaż Czeladź, Madera

4 pokoje
124.00 m²
5 153,23 zł/m2
DMD-DS-2274
Oblicz ratę kredytu

639 000 zł

Dom na sprzedaż
Bez prowizji

Szczegóły oferty

Symbol oferty DMD-DS-2274
Powierzchnia 124,00 m²
Powierzchnia działki [m2] 381 m²
Liczba pokoi 4
Rodzaj domu szeregowiec
Standard
Ukształtowanie działki płaska
Stan budynku do wykończenia
Rok budowy 2025
Umeblowanie puste

Opis nieruchomości

DOMY SZEREGOWE Z GARAŻEM I OGRODEM | CZELADŹ | UL. WIDOKOWA

Na sprzedaż nowoczesne domy w zabudowie szeregowej realizowane przy ul. Widokowej w Czeladzi (boczna od ul. Rolniczej). Kameralna inwestycja obejmuje segmenty o funkcjonalnym, 4-pokojowym układzie, z garażem w bryle budynku oraz prywatnym ogrodem.

To propozycja dla osób szukających komfortowej alternatywy dla mieszkania w bloku – z większą przestrzenią, własnym ogrodem i szybkim dojazdem do miast aglomeracji śląskiej.

PODSTAWOWE INFORMACJE

Powierzchnia użytkowa: 123,82 m²
Powierzchnia działek: od 267 m² do 381 m²
Stan: surowy zamknięty
Planowany termin odbioru: grudzień 2025 r.

Dostępne segmenty:
– segmenty środkowe (S10, S11, S14, S15): 639 000 zł brutto
– segmenty skrajne (S9, S12): 669 000 zł brutto

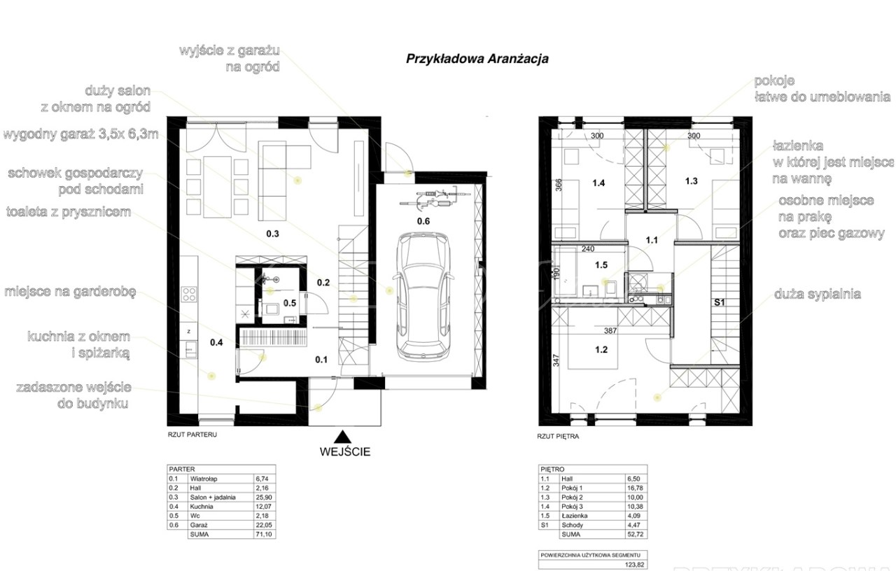
UKŁAD POMIESZCZEŃ

Parter – 71,10 m²:
– wiatrołap,
– hall,
– salon z jadalnią,
– kuchnia,
– WC,
– garaż w bryle budynku.

Piętro – 52,72 m²:
– hall,
– 3 sypialnie,
– łazienka,
– komunikacja.

Układ domu pozwala na wygodne funkcjonowanie 4–5 osobowej rodziny. Strefa dzienna została wyraźnie oddzielona od części prywatnej na piętrze.

LOKALIZACJA

Inwestycja położona jest w spokojnej, rozwijającej się części Czeladzi, z szybkim wyjazdem na DK86.

Dojazd do:
– Katowic,
– Sosnowca,
– Będzina,
– miast całej aglomeracji śląskiej

zajmuje kilkanaście minut. Lokalizacja łączy kameralne otoczenie z dobrą dostępnością komunikacyjną.

ATUTY INWESTYCJI

– garaż w bryle budynku,
– prywatny ogród,
– przemyślany układ 4-pokojowy,
– nowe budownictwo w uporządkowanej zabudowie,
– dobra relacja ceny do metrażu w porównaniu z rynkiem mieszkań.

WARUNKI ZAKUPU

Kupujący nie płaci prowizji oraz podatku PCC 2%.

Zapraszam do kontaktu w celu uzyskania szczegółów dotyczących dostępności segmentów oraz harmonogramu realizacji.

Lokalizacja nieruchomości

Kalkulatory

Kalkulator kredytowy

Wysokość raty

PLN
%

Kalkulator kosztów

Taksa notarialna
(opłata notarialna)

Wniosek o wpis do KW

VAT od prowizji
agencji nieruchomości

VAT od taksy notarialnej
(opłaty notarialnej)

Prowizja agencji nieruchomości

Wypisy aktu notarialnego

Razem

Uwaga: mogą wystąpić dodatkowe opłaty za założenie księgi wieczystej oraz ustanowienie hipoteki.

PLN
PLN
PLN
PLN
PLN
%
PLN

Agent

Proszę wprowadzić poprawne imię i nazwisko
Proszę wprowadzić poprawny numer telefonu
Proszę wprowadzić poprawny adres e-mail
Proszę zaznaczyć wymagane zgody
Rozwiąż równanie:
24 8
Niepoprawny wynik