Dom na sprzedaż Bytom, Śródmieście, Cegielniana

5 pokoi
113.00 m²
7 955,75 zł/m2
DMD-DS-2440
Oblicz ratę kredytu

899 000 zł

Dom na sprzedaż
Nowa oferta

Szczegóły oferty

Symbol oferty DMD-DS-2440
Powierzchnia 113,00 m²
Powierzchnia użytkowa [m2] 107,00 m²
Powierzchnia działki [m2] 436 m²
Liczba pokoi 5
Rodzaj domu wolnostojący
Technologia budowlana gazobeton
Liczba pięter w budynku 1
Okna nowe PCV
Instalacje nowe
Zagosp. działki niezagospodarowana
Ukształtowanie działki płaska
Kształt działki prostokat
Pokrycie dachu dachówka ceramiczna
Stan budynku do wykończenia
Ogrodzenie działki brak
Rok budowy 2026
Gaz jest
Woda ciepła z pieca CO
Dojazd droga utwardzona
Ogrzewanie podłogowe
Umeblowanie puste
Prąd jest
Kanalizacja miejska

Opis nieruchomości

 Nowoczesny dom z garażem | 107 m² | działka 436 m² | bez PCC

Na sprzedaż nowoczesny dom jednorodzinny realizowany na podstawie projektu Dom w borówkach – przemyślana architektura, bardzo dobry układ funkcjonalny oraz rozwiązania odpowiadające współczesnym standardom budownictwa.

Dom o powierzchni użytkowej 107 m², posadowiony na działce 436 m² – optymalna przestrzeń zarówno do życia, jak i zagospodarowania ogrodu.

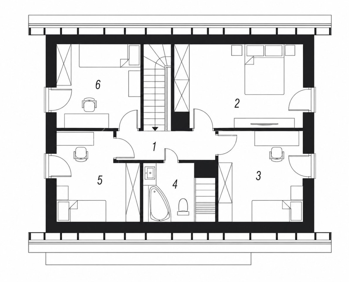
Układ funkcjonalny

Parter:

  • przestronny salon z jadalnią i wyjściem na ogród
  • kuchnia (możliwość otwarcia lub wydzielenia)
  • łazienka
  • wiatrołap
  • garaż w bryle budynku
  • bezpośrednie przejście z domu do garażu

Poddasze:

  • sypialnia główna
  • 3 dodatkowe pokoje (dzieci / gabinet)
  • łazienka
  • miejsce pod garderoby / zabudowy

 Standard i zakres wykonania

Docelowy zakres prac obejmuje:

  • wykonane tynki wewnętrzne
  • wykonane wylewki
  • kompletną instalację elektryczną
  • zamontowany kocioł grzewczy
  • wysokiej klasy stolarkę okienną SCHÜCO

Dodatkowo:

  • płyta fundamentowa
  • dach pokryty dachówką ceramiczną

 Media

  • gaz
  • prąd
  • woda
  • kanalizacja

Najważniejsze atuty

  • powierzchnia 107 m² – optymalna dla rodziny
  • działka 436 m² – komfortowa, ustawna
  • garaż w bryle budynku
  • funkcjonalny, sprawdzony układ
  • duże przeszklenia i dobre doświetlenie
  • wysoka jakość materiałów (SCHÜCO, dachówka ceramiczna)
  • możliwość indywidualnego wykończenia
  • inwestycja na zaawansowanym etapie realizacji

 Informacje sprzedażowe

  • rynek pierwotny
  • kupujący zwolniony z PCC 2%

 Podsumowanie

Dom dla osób, które szukają nowoczesnej, funkcjonalnej przestrzeni z garażem i chcą przejąć inwestycję na etapie, który pozwala skupić się już wyłącznie na wykończeniu i aranżacji wnętrza pod własne potrzeby.

 

Lokalizacja nieruchomości

Kalkulatory

Kalkulator kredytowy

Wysokość raty

PLN
%

Kalkulator kosztów

Taksa notarialna
(opłata notarialna)

Wniosek o wpis do KW

VAT od prowizji
agencji nieruchomości

VAT od taksy notarialnej
(opłaty notarialnej)

Prowizja agencji nieruchomości

Wypisy aktu notarialnego

Razem

Uwaga: mogą wystąpić dodatkowe opłaty za założenie księgi wieczystej oraz ustanowienie hipoteki.

PLN
PLN
PLN
PLN
PLN
%
PLN

Podobne oferty

Nowa oferta

Dom na sprzedaż

Bytom, Śródmieście

5 pokoi 97 m2 7 721,65 zł/m2
Nowa oferta
Nowa oferta

Dom na sprzedaż

Bytom, Śródmieście

5 pokoi 97 m2 7 721,65 zł/m2
Nowa oferta

Manager

Proszę wprowadzić poprawne imię i nazwisko
Proszę wprowadzić poprawny numer telefonu
Proszę wprowadzić poprawny adres e-mail
Proszę zaznaczyć wymagane zgody
Rozwiąż równanie:
30 7
Niepoprawny wynik