Mieszkanie na sprzedaż Ożarów Mazowiecki, Ożarów

3 pokoje
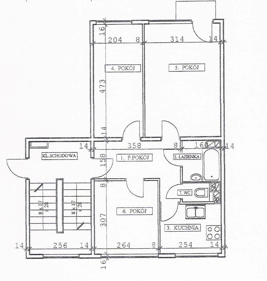
48.00 m²
11 458,33 zł/m2
4 piętro
DMD-MS-2322
Oblicz ratę kredytu

550 000 zł

Mieszkanie na sprzedaż

Szczegóły oferty

Symbol oferty DMD-MS-2322
Powierzchnia 48,00 m²
Liczba pokoi 3
Rodzaj budynku blok
Technologia budowlana beton, płyta
Standard
Piętro 4
Liczba pięter w budynku 4
Stan lokalu Do odświeżenia
Okna PCV
Instalacje częściowo wymienione
Balkon jest
Liczba balkonów 1
Gaz jest
Woda ciepła - miejska
Dojazd asfalt
Ogrzewanie miejskie
Umeblowanie umeblowane
Usytuowanie dwustronne
piwnica tak, 5,00 m²

Opis nieruchomości


Na sprzedaż mieszkanie w centrum Ożarowa, ul Obrońców Warszawy.

Lokal położony jest na 4-tym, ostatnim piętrze w zadbanym budynku z roku 1981.  Budynek nie posiada windy.
Składa się z 3 pokoi. kuchni, łazienki i toalety. Jeden z pokoi ma balkon.  Do mieszkania przynależy też piwnica o pow 3m².

Mieszkanie jest dwustronne. Okna wychodzą na północny-wschód i południowy-zachód.
W budynku wymieniona została instalacja wodno-kanalizacyjna i elektryczna.

Przed budynkiem znajdują się miejsca postojowe dla mieszkańców spółdzielni (2 miejsca na mieszkanie).

Mieszkanie jest w stanie do odświeżenia.

Lokalizacja:
Obok znajduje się przystanek autobusowy
Do stacji kolejowej - 10 minut piechotą
W okolicy sklepy, przedszkole, szkoła.

Idealne jako mieszkania na start lub inwestycja na wynajem.
Stan prawny: odrębna własność, księga wieczysta
Zapraszam na prezentację.













 

Lokalizacja nieruchomości

Kalkulatory

Kalkulator kredytowy

Wysokość raty

PLN
%

Kalkulator kosztów

Podatek od czynności cywilno-prawnych

Taksa notarialna
(opłata notarialna)

Wniosek o wpis do KW

VAT od prowizji
agencji nieruchomości

VAT od taksy notarialnej
(opłaty notarialnej)

Prowizja agencji nieruchomości

Wypisy aktu notarialnego

Razem

Uwaga: mogą wystąpić dodatkowe opłaty za założenie księgi wieczystej oraz ustanowienie hipoteki.

PLN
PLN
PLN
PLN
PLN
PLN
%
PLN

Agent

Proszę wprowadzić poprawne imię i nazwisko
Proszę wprowadzić poprawny numer telefonu
Proszę wprowadzić poprawny adres e-mail
Proszę zaznaczyć wymagane zgody
Rozwiąż równanie:
17 6
Niepoprawny wynik